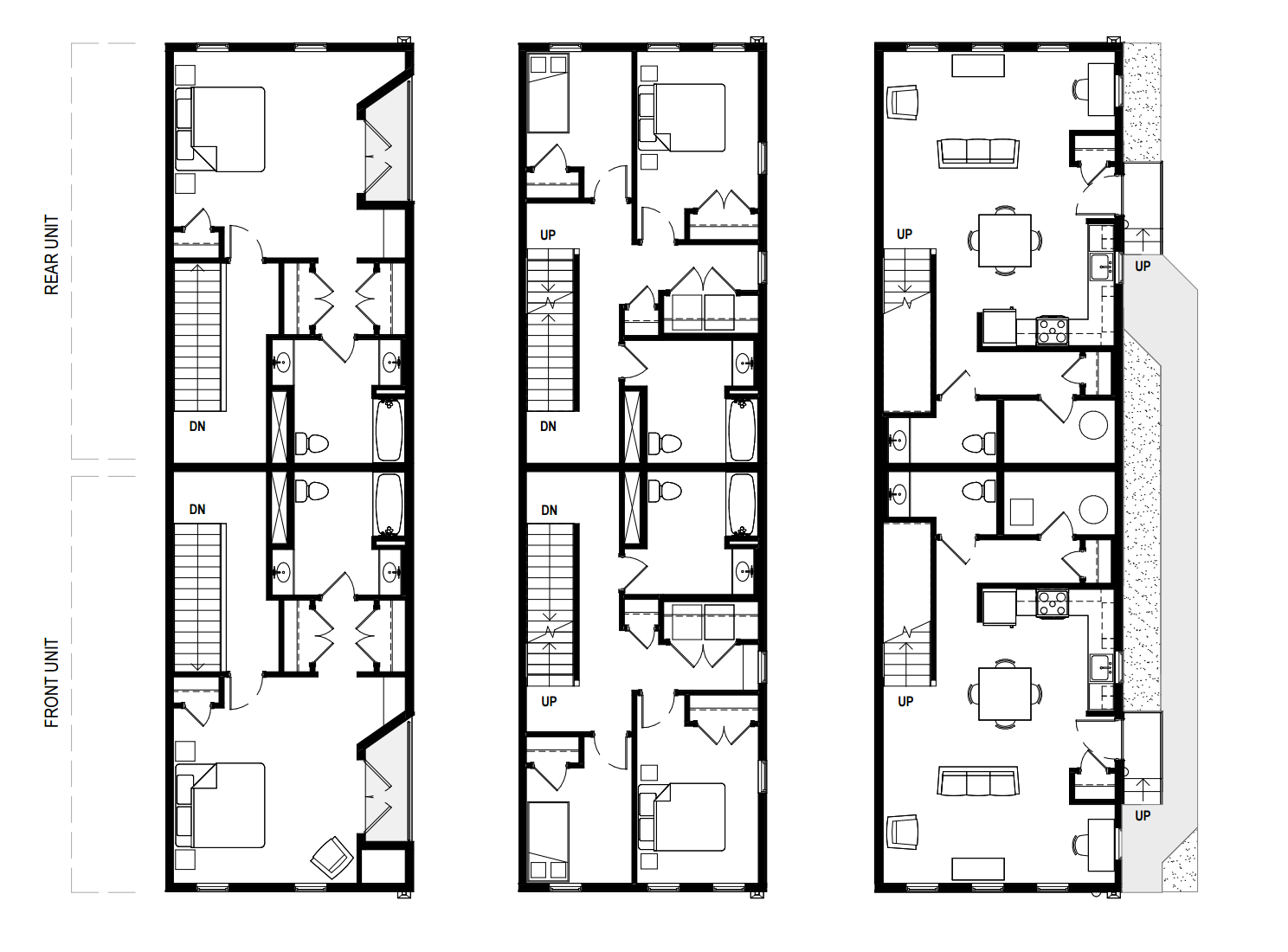
Double Duplex

Unapologetic missing-middle infill.

Confidential Client

Covington, KY
In-Progress

I’m here to help solve a problem.

Next
Next

Culture Coffee